Проект хоз. постройки G-088. Гараж 150 кв м

6 580 500
Есть в наличии
Количество:
Цены

Стоимость строительства указана из расчета (газосиликатные блоки+штукатурка + плита 30 см), также можно построить в каркасном исполнении

Больше фотографий наших работ (Детальные фото) можете посмотреть в сообществе в VK https://vk.com/mirgradstroy

Также можно посмотреть на сайте в разделе "Наши работы"

  • Фундамент: глубина 1,2-2,8 м, ленточный или блоки ФБС
  • Цоколь: высота 0,45 м, фундаментный кирпич, блоки, монолит
  • Наружные стены: толщина 350 мм, пенобетон/газобетон+лицевой кирпич
  • Внутренние стены: пенобетон/газобетон, кирпич
  • Высота 1-го этажа: 2,7-3,0 м
  • Высота подвала: 2,2 м
  • Перекрытия 1-го этажа: по деревянным балкам
  • Перекрытия подвала: сборные ж/б плиты
  • Кровля: битумная черепица, металлочерепица
  • Наружная отделка стен: лицевой кирпич
  • Наружная отделка цоколя: природный камень
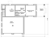
  • Ширина: 16,1 м
  • Длина: 11,1 м
  • Высота от уровня пола 1-го этажа: 5,7 м
У нас Вы можете заказать строительство или купить отдельно этот проект. Вся информация о стоимости строительства и комплектациях есть в разделе "Строительство", информацию о составе проекта можно получить в разделе "Проектирование". Дополнительную консультацию можно получить по телефону или в мессенджерах.
  • Площадь
    131,61
  • Этажность
    одноэтажные
  • Гараж
    с гаражом
  • Подвал
    с подвалом
  • Терраса
    с террасой
  • Материалы строительства
    из кирпича
Эти проекты могут вам понравиться

 

Адрес и режим работы
Наш офис расположен в Москве, строительство осуществляем на всей территории Московской области, по готовым проектам и индивидуальному проектированию сотрудничаем со всеми регионами РФ и странами СНГ.
 
 
 
Адрес:
г. Москва, Кронштадтский б-р., 7А
ТЦ "Кронштадтский".
(посещение офиса строго по договоренности)
 
График работы:
Понедельник - Воскресенье
09:00 - 21:00
 
 
Контактная информация